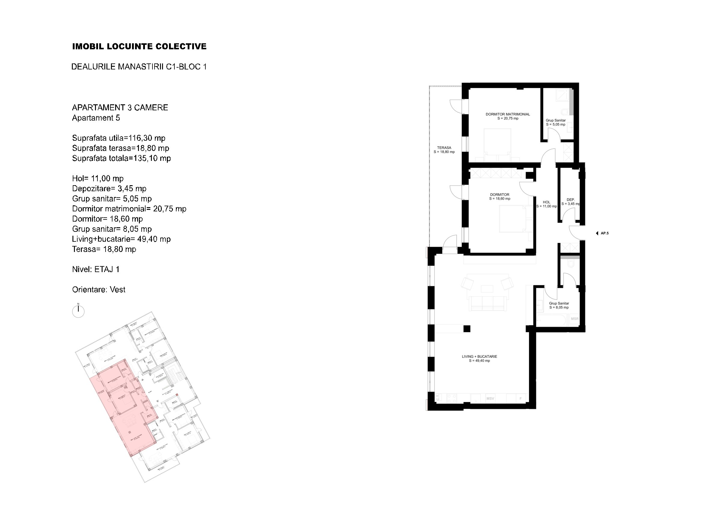
Apartament 3 camere - SkyView - S.utilă 116.30mp - Et 1 -

Apartament 3 camere - SkyView

Disponibil la etajul
1
S. utilă: 116.30mp + 18.8mp terasa = 135.1mp

Apartament 3 camere - SkyView

Disponibil la etajul
1
S. utilă: 116.30mp + 18.8mp terasa = 135.1mp
Hol acces
11.00mp
Baie
5.05mp
Baie
8.05mp
Dormitor
20.75mp
Dormitor
18.60mp
Camera de zi + Bucătărie
49.40mp
Cameră depozitare
3.45mp
Terasă
18.80mp
S. utilă: 116.30mp + 18.8mp terasa = 135.1mp

Un nou proiect MOL INVEST într-o locație unică, pe platoul Mănăstirii Dealu cu vedere panoramică spre oraș și spre Gura Văii.

Apartamente spațioase tip penthouse cu 3 camere și terase.

Detalii Apartamente

 

Apartamente spațioase tip penthouse cu 3 camere și terase.

Avantajul achiziționării în avans constă în personalizarea finisajelor!

Doriți mai multe informații?
 

Vă rugăm completați formularul de mai jos, iar în cel mai scurt timp veți fi contactat de un reprezentant MOL Invest.

De asemenea, ne puteți contacta la

Adresa imobil
 

44.954558, 25.485131

SkyView
Apartamente tip penthouse

Deschide în:

Google Maps | Waze