Apartament 3 camere - iCity - în centrul orașului - S+P+11 - S.utilă 74.85mp - Et 5, 6, 7, 8, 9, 10 -

Apartament 3 camere - ICity – Eleganță Ultracentrală, Apartamente Noi cu Stil

Disponibil la etajele
5
6
7
8
9
10
S. utilă: 74.85mp + 5.97mp balcon = 80.82mp

Apartament 3 camere - ICity – Eleganță Ultracentrală, Apartamente Noi cu Stil

Disponibil la etajele
5
6
7
8
9
10
S. utilă: 74.85mp + 5.97mp balcon = 80.82mp
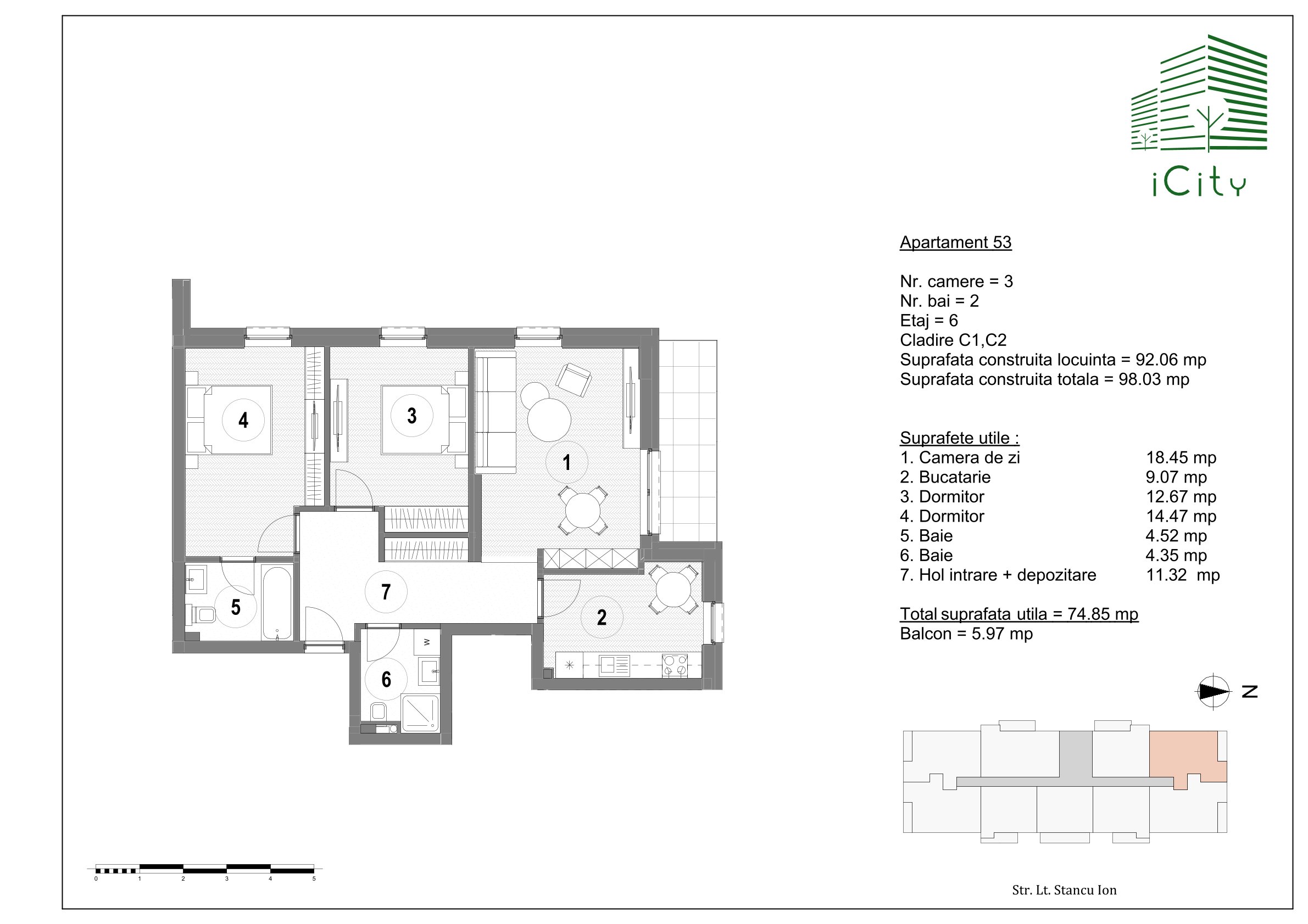
Hol intrare + depozitare
11.32mp
Baie
4.52mp
Baie
4.35mp
Bucătărie
9.07mp
Dormitor
14.47mp
Dormitor
12.67mp
Cameră de zi
18.45mp
Balcon
5.97mp
S. utilă: 74.85mp + 5.97mp balcon = 80.82mp

MOL Invest dezvoltă un cartier nou, iCity, în centrul orașului pe terenul UPET (str. Lt. Stancu Ion). Două imobile S+P+11 cu apartamente deosebite, de două și trei camere, plus zonă de prestări servicii la parter.

Detalii Apartamente

 
  • Structură din beton armat;
  • Pereții exteriori și interiori din cărămidă tip BCA;
  • Tencuială mecanizată, glet, lavabil alb în 2 straturi;
  • Exteriorul va fi finisat cu vopsea decorativă;
  • Termosistem de 10 cm (80 eps);
  • Șape elicopterizate;
  • Gresie, faianță, parchet;
  • Uși de interior PINUM sau similar;
  • Ușa metalică de acces în apartament Mega Door sau similar;
  • Prize și întrerupătoare Schneider;
  • Tâmplărie bicolor 5 camere pvc QFORT cu geam tripan;
  • Centrală individuală prin condensare cu sistem de încălzire prin pardoseală;
  • Aer condiționat, o unitate / apartament;
  • Balustrade casa scării din inox;
  • Balustrade din sticlă la balcoane;
  • Imobil branșat individual la apă, canal, gaze, electricitate, internet, tv;
  • Spațiile comune finisate, alei, spații verzi, locuri de parcare, iluminat exterior;
  • Imobil deservit de 2 lifturi rapide Schindler;
  • Acces cu barieră;
  • Monitorizare video;
  • Imobilul se predă nemobilat cu obiecte sanitare standard în băi;
  • Hidroizolație terasă / acoperiș imobil cu garanție executant.

Avantajul achiziționării în avans constă în personalizarea finisajelor

Pentru rezervări, departamentul de vânzări vă stă la dispoziție la numerele de telefon 0737556557 și 0737557556.

Doriți mai multe informații?
 

Vă rugăm completați formularul de mai jos, iar în cel mai scurt timp veți fi contactat de un reprezentant MOL Invest.

De asemenea, ne puteți contacta la

Adresa imobil
 

44.920087964761, 25.463824380188

ICity – Eleganță Ultracentrală
str. Lt. Stancu Ion

Deschide în:

Google Maps | Waze